|
6.02.2013
Dworzec zmieni się nie do poznania!
Za
kilka miesięcy, latem, rozpocznie się budowa kolejnego powiatowego
Inkubatora Przedsiębiorczości i dworca PKS w jednym, przy ul. Moniuszki
w Kluczborku. Powiat złożył wniosek o
dofinansowanie tej inwestycji i otrzymał 3 mln zł
z Regionalnego Programu Operacyjnego Województwa Opolskiego. 5,7 mln zł
to koszt całego zadania. Najprawdopodobniej po przetargu, który zostanie
ogłoszony wiosną, będzie ona niższa.
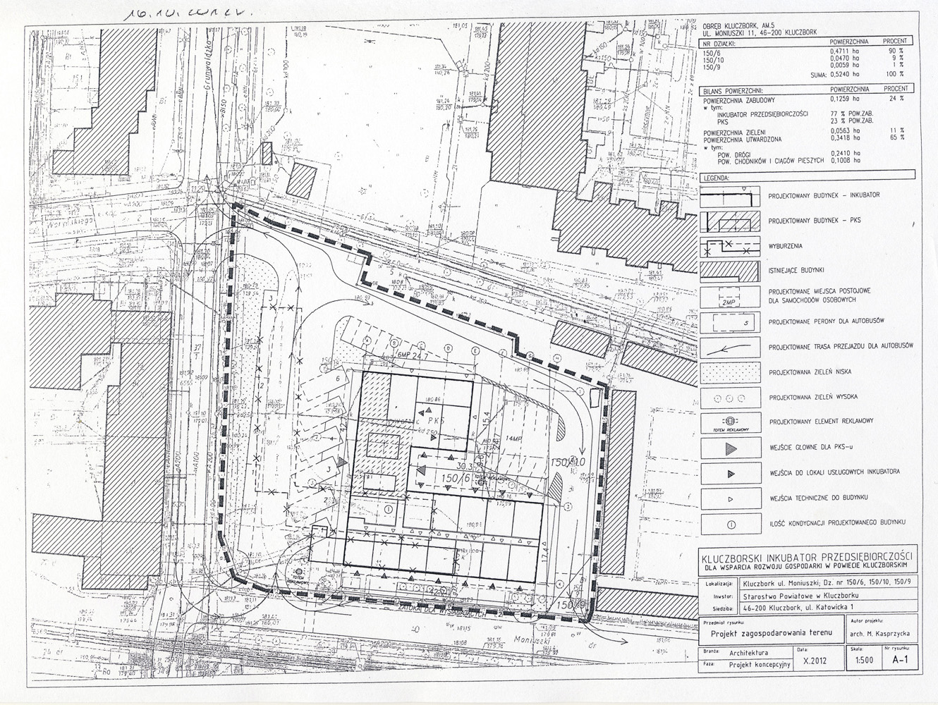
Co się zmieni? Parterowy budynek dworcowy będzie rozebrany, a plac
dworca zostanie na nowo zagospodarowany. Powstanie w tym miejscu obiekt
o powierzchni 1200 m kw., który będzie łączył
dwie funkcje: dworca - z poczekalnią dla
pasażerów, kasami biletowymi, biurem podróży, salonikiem prasowym oraz
powiatowego inkubatora przedsiębiorczości - z 15 pomieszczeniami, w tym
trzema gastronomicznymi. Lokale będą miały od 40 do 50 m2 i osobne
wejścia.
Pierwszy powiatowy Inkubator Przedsiębiorczości działa już przy ulicy
Sienkiewicza i w stu procentach spełnia swoje zdanie. Początkujący
przedsiębiorcy uzyskują tam wsparcie na początku swojej działalności,
poprzez możliwość wynajmu pomieszczeń po preferencyjnych cenach i pomoc
przy zakładaniu oraz prowadzeniu firmy. Wszystkie pomieszczenia w
tamtych Inkubatorze są wynajęte i wciąż pojawiają się chętni. Stąd
decyzja, by stworzyć kolejne takie miejsce dla rozwoju lokalnej
przedsiębiorczości, właśnie przy ulicy Moniuszki.
- To będzie ta sama placówka, czyli powiatowy
Inkubator Przedsiębiorczości, ale podzielona na dwie lokalizacje, nieco
różniące się profilem działalności - wyjaśnia szczegóły
projektu starosta Piotr Pośpiech, który jest pomysłodawcą całego
przedsięwzięcia.
Przy wynajmie pomieszczeń w nowym inkubatorze przy Moniuszki, ważnym
kryterium będzie innowacyjność proponowanej działalności. Placówka
będzie oferować wsparcie początkującym przedsiębiorcom przez 10 lat.
Tyle zakład projekt.
Teren przy Moniuszki to łakomy kąsek dla potencjalnych inwestorów.
Dzięki przejęciu działki przez powiat, nie powstanie tu galeria
handlowa, będzie to miejsce nastawione na wsparcie lokalnej
przedsiębiorczości, teren zyska na estetyce, a dworzec ma szanse należeć
do najładniejszych w województwie.
Prace mają potrwać do połowy przyszłego roku. Oprócz dworca i inkubatora
na placu przy Moniuszki powstanie też parking dla samochodów, stanowiska
dla autobusów i drogi dojazdowe.
Oprac. M. Kluf
Zobacz jak ma wyglądać inkubator przy ul. Moniuszki.

Archiwum wydarzeń:
2002 |
2003 |
2004 |
2005 |
2006 |
2007 |
2008 |
2009 |
2010 |
2011 | 2012 |
2013 |